Previous Page Table of Contents Next Page


PART II
CONTRIBUTED PAPERS (Contd.)

SCSP-SFDC/77/AEn/CP11

DESIGN OF A FRESHWATER FISH HATCHERY FOR SMALL FISH FARMERS

by

P.E. Osborn
FAO/UNDP Brackishwater Aquaculture Development and Training Project
Manila, Philippines

1. INTRODUCTION

There should be a definition of the term “small fish farmer”. Certainly a fish farmer raising only a few hundred or even a few thousand fish cannot economically have a hatchery for his own needs. The hatchery itself is not too expensive, but maintaining a stock of selected brood fish is certainly too expensive in time and space to be justified for any individual producing less than perhaps a half million food fish. This is not a fixed figure and will depend somewhat on species of fish involved and whether single species or multi-species rearing and hatching is involved.

2. WATER SUPPLY

Assuming that the land area and water supply are suitable for the ponds necessary to support a hatchery, it must then be determined if the water supply is suited to hatchery purposes. The water supply can be surface water or subsurface water. If surface water is available by gravity flow through the hatchery system, it should be used in preference to other water sources unless it is unfit for hatchery use. The dependability of gravity flow is so important that this dependability usually overrides the problems in the use of most surface waters.

3. SURFACE WATER

Surface waters usually need special treatment if they are to be used in fish hatcheries. Most surface waters contain fish and other organisms which may serve as reservoirs for parasites and diseases which may attack eggs and fry in the hatchery. Surface waters also usually contain water molds which can be destructive to eggs. In addition, some surface waters carry suspended solids which may clog valves and screens, coat and smother eggs, and clog the gills of fry. Fry or larvae of some species have sticky glands on their heads which increase entanglement in debris, and may lead to almost total mortality. Proper design and placement of intake structures can reduce the amount of floating and suspended solids in the hatchery water supply.

4. FILTER

Filtration of surface waters can be accomplished with sand/gravel filters. A pair of filters 3 meters in diameter and one-half meter in depth should provide ample filtering capacity unless the water to be filtered carries a very heavy load of suspended solids. Sand should be fine enough to filter out particles larger than 0.025 mm in the small dimension. This will remove most suspended solids including fish eggs and parasites. It will not remove bacteria, water molds, viruses, or some of the smaller spores of myxosporidians and microsporidians. Provisions should be made for backflushing filter with clean water. Filters should be in pairs so that one can be regenerated by backflushing while the other remains in use. Water flow should be regulated so that water level in the filters remains at or above the top of the sand layer. Otherwise, water channels may develop through the filter bed. Entering water may be spread over plastic or wood sheets to prevent damage to the filter bed.

5. STORAGE RESERVOIRS

If, after filtering, water is at too low an elevation to be used in the hatchery by gravity flow, it must be lifted to a storage reservoir. This reservoir should have a capacity large enough to serve all hatchery needs for several hours, long enough to make repairs on pumps and filters, or to put back-up equipment into use. The reservoir should be equipped with a warning device which will sound an alarm before the water reaches a dangerously low level. The reservoir can also be equipped with a device to automatically turn electric pumps on and off at preselected levels.

The reservoir should have a large area as compared to depth to minimize pressure differences as water is used or added. The reservoir should be shaded, but the temperature in the reservoir should not be lower than the temperature in the hatchery. Cool water coming into a warm hatchery will release dissolved gases as it warms. These bubbles of dissolved gases may attach to eggs, causing them to float.

6. SUBSURFACE WATERS

Subsurface water, water from wells, is usually free of fish pathogens and suspended solids. Therefore, such water does not require filtering before being pumped to a reservoir. However, most well water is devoid of, or is low in oxygen, and may contain ferrous salts which precipitate out as a gel when oxidized. To aerate the water, it can be discharged in a thin sheet over a rippled surface before entering the storage reservoir.

If the water contains ferrous salts it may be necessary to have two reservoirs. One can be in use while the other acts as a settling basin for the precipitates. Water takeoff point for the hatchery should be well above the bottom of the reservoir, with a drain at the bottom for removing precipitate. Precipitates can be settled more rapidly by use of chemicals, if necessary.

7. HATCHERY

In tropical areas the hatchery proper need not be elaborate. In fact, it need not be enclosed, only roofed. There is usually no need for water or space heaters. The water supply pipe from the reservoir should be large enough that turning on a valve will not noticeably reduce water supply to other points.

8. HATCHING TROUGHS

Troughs are very versatile. Troughs can be used for hatching eggs, holding larvae, feeding fry, and, with a suitable water supply and a complete feed, for the rearing of fingerlings.

While troughs are not ideal for hatching eggs of all species of freshwater fish, they can be used for most if not all species. Trout eggs were historically hatched in troughs before going largely to drip incubators which use less water and space. Channel catfish eggs are nearly always hatched in troughs. In addition to trout and channel catfish, the author has successfully used troughs for hatching blue catfish, flathead catfish, European catfish (Siluris glanis), pike-perch (Leucoperca), common carp, silver carp, bighead carp, grass carp, and several species of salmon. Hatching jars and nets are perhaps better for some of the above, but eggs can be hatched without these devices.

Hatching troughs can be built in an infinite variety of lengths, depths, and widths. Size will depend partly on the water supply, partly on the species to be hatched, partly on the number of eggs to be handled, and partly on the operator's past experience. Usually, the depth and width are about equal, with length being selected to fit the space requirements for the number of eggs or fry to be handled at one time. A width and depth of about 35 cm is good for most species. However, if many Chinese carps (silver, bighead, and grass carps) are to be spawned, the trough should be somewhat deeper. A single Chinese carp spawner is easily capable of producing 1 000 000 eggs requiring at least 100 liters of water space in the egg containers. However, these eggs generally hatch within 24 hours at normal hatching temperatures, so the hatching equipment is not tied up long for each group of eggs. Compare this with the several months required to hatch trout and salmon eggs.

Hatching troughs can be constructed of wood, iron, aluminum or fiberglass. Iron should be painted to protect from rusting. Galvanized iron should not be used.

9. TANKS

Tanks as well as troughs can be used for many purposes in a hatchery. One use is to hold selected brood fish immediately prior to spawning. Fish are easily handled in tanks and are almost immediately available for checking for ripeness.

Tanks can also be used to hold larvae or newly hatched fry in screens or hapas, or can be used for feeding fry up to fingerling stage.

As with troughs, tanks can be built with wood, iron aluminum, or fiberglass. In addition, concrete can be used for tanks. The inside surfaces of concrete tanks should be as smooth as possible. Concrete can also be painted. Do not use paints containing polysulfide hardeners. Unpainted concrete tanks should be filled and flushed several times before use. Fish from ponds will often develop abrasions on ventral surfaces when held in tanks for several days. However, fish which grow from fry to fingerlings, or even larger, in tanks seldom have such problems.

If heavy larvae, which tend to pile up on bottom of containers are held in screens in tanks, they should be supported by upward flowing water. A loop of plastic pipe, with holes at proper intervals, can be placed on the bottom of the tank containing larvae in screens. A water source is connected to this plastic pipe to produce an upwelling effect. Air is not suitable under fine-meshed screens as bubbles are formed under the screen, cutting off the circulating effect of the water.

In addition to flowing water, tanks can be aerated by use of electric motor driven agitators. Use agitators only with heavy loadings of brood fish and fingerlings. Unless small fry are confined in screens away from the agitators they will be injured.

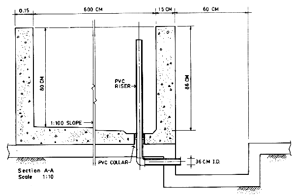
If tanks are made of concrete, imbed a PVC coupling of proper size at the drain. Risers of PVC are inserted into this coupling to give a water tight seal and to control depth of water in the tank. Screen outlet pipe with a box screen of appropriate mesh size.

10. HATCHING JARS

Figure 4 shows one type of hatching jar which has performed well. Capacity is about 65 liters, and will accommodate ½ million Chinese carp eggs. This jar is supported in a sturdy stand. Plastic hose can be attached to the outlet to direct larvae or fry into holding screens. This jar can be scaled up or down in size if the shape remains constant. A jar of the size shown requires a maximum of 2 to 3 liters per minute of water flow. Figure 1 shows one possible placement of hatching jars in a hatchery. They also can be placed so as to discharge fry into screens held in the hatching trough discharge reservoir. If the species of fish to be used produce eggs which are better hatched in jars, the hatching trough portion of the hatchery can be eliminated.

Other information on hatching jars or nets, as well as spawning and hatching ponds may be found in FAO Fisheries Technical Paper, No. 168 - “Freshwater Fisheries and Aquaculture in China.”

11. RECIRCULATING WATER

There are some advantages to recirculating part of the water used in a hatchery.

11.1 Water requirements can be reduced by as much as two-thirds.

11.2 Temperature differentials between outside waters and out of trough and tank waters are reduced.

11.3 Fry and even eggs are sometimes benefited by use of “conditioned” water.

11.4 If one supply system fails, the eggs or fry have a chance to survive on the second system until repairs are made.

From 50% to 75% of the water supply to troughs and tanks can be recirculated water. The remaining percentage is fresh water brought into the hatchery. Except in emergencies the recirculated water should be continuously diluted with fresh water.

In figures 1 and 2, the hatching troughs are shown. Each trough empties into a single hatching trough discharge reservoir. It is a simple matter to install a small electric pump, with the inlet suitably screened, to recirculate water to the hatching troughs, or alternately to the fingerling growing tanks. Similarly, water from the tanks can be recirculated by putting a catchment basin under the overflow and installing a pump. The recirculated water should flow through its own system and not be mixed with the incoming water until it is discharged into the troughs or tanks.

A mesh size of 0.5 mm will screen out any fry in the water supply. The screen area should be large enough to supply the recirculating pump without the need for continuous cleaning of screens. A valve should be placed in the pump discharge line to regulate the amount of water pumped.

12. WATER REQUIREMENTS

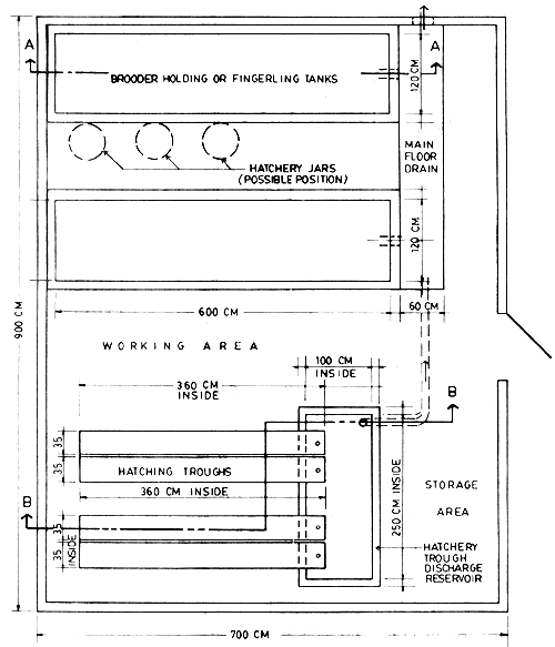
Each hatching trough shown in figures 1 and 2 will handle approximately 1 million eggs of grass, silver, or bighead carp. The water requirements would average about 20 liters/minute per trough. Other species of fish have different, usually larger, space requirements for their eggs, but may require only slightly more, or less, water per trough.

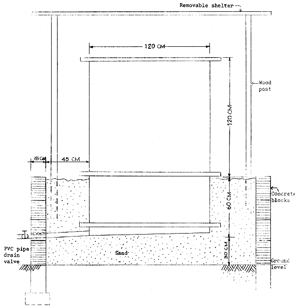
Maximum water requirement for brooder holding or fingerling growing tanks is about one change of water per 90 minutes, or ⅔ change per hour. The tanks shown in figures 1 and 3 would contain about 4 m3 of water, with a maximum requirement of about 67 liters/minute per tank.

Therefore, the total requirements for four troughs and two tanks, operating at capacity, would be about 214 liters/minute. Very infrequently would all be at maximum use, but the system should be designed to operate at maximum. If water is recirculated, the maximum incoming fresh water could be reduced to about 70 liters/minute.

The hatchery shown is not intended to demonstrate ideal size for every situation, but is simply a model which can be scaled up or down to fit the needs of an individual requirement.

13. SUPPLIES AND EQUIPMENT

13.1O2, pH, NH3, and iron test kits. If surface waters are used, the iron test kit can be omitted.
13.2Clear plastic hose - several diameters.
13.3Assorted plastic basins and pails - preweigh and mark with weight.
13.4Dip nets - various sizes, of soft cloth, not too deep.
13.5HCG, and pituitary material
13.6Acetone - for drying pituitaries
13.7Small vials, macerator, hypodermics, needles, graduates, beakers, etc.
13.8Chemicals for egg handling - urea, salt, sugar
13.9Chemicals for parasite and disease prevention and treatment - malachite green, formalin, Neguvon (=dylox, dipterex, masoten), diquat.
13.10Triple beam balance
13.11Agitators
13.12Binocular dissecting scope
13.13Siphon or carburetor for chemical drip system
13.14Thermometers, valves, hose clamps
13.15Oxygen and plastic bags for shipping fish
13.16Tube nets and cradles for handling brooders.

14. HELPFUL HINTS

14.1   If pumping is by electric motors, have a standby gas or diesel engine. If pumping is by gas or diesel engines, have a spare mounted ready to start. Small gasoline engines are not designed for continuous use. Have a spare pump mounted for instant use.

14.2   All employees should be trained and prepared to make necessary adjustments in emergency situations.

14.3   Do not skimp on safety or warning devices. Water pressure or water level drop below critical levels should be signaled by battery-powered horns or bells.

14.4   Troughs should be built to uniform dimensions so that dividers and screens are freely interchangeable.

14.5   A supply of beeswax, or toilet bowl seating wax, is almost indispensable for sealing small leaks and preventing fry movement around screens and deain boards. This wax can be moulded in place under water, is nearly inert, and most can be reclaimed for future use.

14.6   Screens ahead of discharge points should have sufficient area to handle normal flows without constant cleaning. Slanted drain screens give more area for water passage. Top of screens should be even with top of trough.

14.7   In some cases it is preferable to use mesh sizes for egg baskets which retain eggs, but allow fry or larvae to pass through.

14.8   Spray heads should not clog easily. Sprinkler heads are to be avoided.

14.9   Drain pipes should be of sufficient size to easily carry off water.

14.10   Avoid galvanized iron, copper, and cadmium in contact with water. Especially avoid lead in heating elements for water. Galvanized iron is satisfactory for drains, but PVC is preferable. Troughs can be wood, painted iron, fiberglass or aluminum. Use vinyl coated wire or nylon for egg and fry holding baskets.

14.11   Weigh-count fry. Have at least 200 in sample. Take two or three samples. Weigh all fish caught in each sample. Size of sample should be large enough that weighing errors are not more than 1%. A representative sample, even of fry, is very difficult to obtain.

14.12   All fish movements should be from water, in water, to water. A clear plastic tube is a useful tool for siphoning fry, larvae, eggs, waste feed, etc.

14.13   Tube nets are useful for handling brood fish. Canvas cradles, with water, are suitable for transporting, examining, and injecting brooders. Many large fish are more docile if inverted.

14.14   Eyed eggs, larvae, and early fry are very sensitive to malachite green. If malachite green treated eggs are to be placed in a system which has eyed eggs or newly-hatched larvae or fry, the treated eggs should be thoroughly rinsed to remove most of the malachite green before placing in the system.

14.15   Use of box screen around tank outlet pipes. Make the pipe entrance hole 1 cm larger in diameter than the pipe. Fasten a piece of rubber over the entrance hole. The entrance hole in the rubber should be 1 cm smaller than the pipe diameter. This ensures a tight fit around the outlet pipe, and will prevent escape of fry.

14.16   Install an elbow and riser on the outer end of the tank drain when holding brood fish in the tank. This will prevent accidental draining of tank if large fish dislodge the inside drain pipe. The same set-up is convenient for draining and recovery of fry from tanks. Swing the riser down to the level desired - raise to stop outflow.

14.17   Use enough water flow in hatching troughs or jars to maintain a constant, gentle movement of eggs. Deflectors and masks can be used in hatching troughs to obtain proper water movement.

14.18   Jar hatching of eggs requires that the eggs be non-adhesive. To remove adhesive quality of common carp, pike, pike-perch, European catfish, and other eggs, tannic acid is often used. However, this frequently reduces egg viability. It is sometimes preferable to eliminate this step and permit the eggs to adhere to the hatching screen. This is accomplished by:

  1. Adding portions of a mixture of 30 g urea (Carbamade), 40 g idodine-free salt (NaC1), and 10 1. of water to the fertilized eggs and mixing gently until eggs are water hardened.

  2. Immerse egg basket in basin with a shallow layer of this solution.

  3. Pour enough eggs in basket to form single layer.

  4. Drain eggs and basket and immerse in clear water and rinse to adhere eggs firmly to basket.

  5. Immerse eggs for 30 seconds in 40 ppm malachite green solution.

  6. Wash off excess malachite green.

  7. Place basket with eggs in trough and adjust water flow.

14.19   Height of reservoir above the discharge point of water will influence water pressure and size of delivery pipes required. Increased height will also reduce the percentage change of water pressure (flow) as water is added to or taken from the reservoir. However, increasing height of the reservoir will also add to energy required for lifting water.

Figure 1.

Figure 1. Plan of hatchery           Scale 1:40

Figure 2

Figure 2. Hatching trough detail

Figure 3

Figure 3. Brooder holding or fingerling tank detail

Figure 4

Figure 4. Plastic hatchery jar         Scale 1 : 4

SCSP-SFDC/77/AEn/CP13

SMALL-SCALE SHRIMP HATCHERY PROJECT

by

H.L. Cook
FAO/UNDP Brackishwater Aquaculture Development and Training Project
Manila, Philippines

1. INTRODUCTION

The title “Small Scale Shrimp Hatchery Project” is perhaps misleading. I don't think shrimp hatchery technology has developed to a point where small backyard or pond side hatcheries are practical. This is because live foods are still required and growing live foods to feed the small shrimp is an art in itself. Not being able to provide reliable supplies of live food is one of the major reasons so many attempts to operate shrimp hatcheries have been unsuccessful. Good foods for larval shrimp may be developed within the next few years and then we may see small scale hatcheries.

For the present let us discuss small scale in terms of the size of the hatchery tanks and other components of the system. There are several reasons for selecting a system with smaller hatchery tanks. The most important is disease. Disease is becoming recognized as a major problem in shrimp hatcheries all over the world. It is much easier to prevent disease, and also to control it, in small tanks. Incoming water can be treated economically. Better water quality can be maintained. Chemotherapy is less costly. The smaller isolated units help prevent the spread of disease. Another benefit of small tanks is that management is easier. Cleaning and sterilization are relatively easy. It is easier to prevent the accumulation of harmful organic waste products by changing water. Since good management procedures are easier to follow, overall survival from egg to postlarvae is usually high. This brings us to another reason. Since overall survival is higher, the number of gravid females required is less. This reduces costs considerably, and is also important in areas where gravid females are scarce. Lastly, the cost of initial construction and of making changes in design is less when small tanks are built instead of large tanks.

2. MAIN FACTORS TO CONSIDER WHEN DESIGNING A SHRIMP HATCHERY

2.1 General considerations

Salt water is very corrosive. The air in coastal areas where a shrimp hatchery would be built is usually corrosive due to its high content of salt. Consequently, when building a shrimp hatchery, great care has to be taken to use materials that will not corrode. Pastic, concrete and wood are good. Nails and screws should be of galvanized iron, aluminum or brass. If brass is in contact with water it should be covered with a coating of epoxy or fiberglass.

In general, the fewer machines or moving parts in a machine, the better. Incoming seawater should be pumped into an elevated storage tank. All flow of water from that point should be by gravity. Air blowers have fewer moving parts than compressors and are more reliable. The water pump and air blower should have a replacement standing by for emergencies. There should be a stand-by generator capable of supplying power for the water pump and air blower.

2.2 Water circulation

Proper water circulation in the culture tanks is one of the most important considerations. Proper circulation prevents settling of algal cells, food particles, dead animals and feces on the bottom of the culture tanks. If these accumulate on the bottom they form piles in which anaerobic decomposition occurs. This process produces harmful metabolites which can slow growth, cause death, or encourage the growth of disease and parasites. If the particles are kept suspended in the water in the presence of oxygen, decomposition is aerobic and the by-products are not as harmful. Proper water circulation also keeps the feed, even artificial food, in suspension and evenly distributed within the tank. The organism being cultured is also kept evenly distributed, there is no gathering at one location in the tank where food might become depleted. In algal cultures good circulation insures that all cells are exposed to the light that is essential for their growth. Shrimp are very hardy to water movement and are not bothered by even violent water movement as long as they do not sustain physical damage by hitting against a solid object. So, in shrimp hatchery tanks, water movement can be vigorous without harming the larvae.

Air lift pumps are the most trouble-free method of moving water. They are more efficient than simple aeration and have no moving parts. Their initial cost is small and they need little or no maintenance. The hatchery system outlined in this paper demonstrates a few of the ways air lift pumps can be employed to provide water circulation. Many more applications can be found if one has the imagination to think of them. Just remember that as a general practice, it is almost always better to substitute an air lift pump for simple aeration with an air stone or other air sparging device.

2.3 Water change

A capability to change water is important in a shrimp hatchery. Water change can be regarded as a general prophylaxis. It reduces the by-products of metabolism such as ammonia and hydrogen sulfide, dilutes disease causing organisms, and gets rid of old food particles.

It is generally considered a good practice to replace one half of the volume of water in a hatchery tank every day. This need to change water creates problems because the larval shrimp are very small and are weak swimmers. Screens with very small mesh sizes must be used. For instance, an opening of 0.18 mm is needed for Penaeus eggs and 0.15 mm for Metapenaeus eggs. The fine screens become stopped up very rapidly and as they become clogged, the water flow through the remaining holes becomes very strong and can trap the larval shrimp. If the pressure is too great the shrimp die.

Water screens in the hatchery tanks must have a large enough surface area so the water pressure on the screen is very low. This permits the larvae to swim off the screen. The screens must be removable so they can be cleaned easily. Smaller mesh screens must be replaced by larger mesh screens as the larvae grow in size. This is because the larger mesh screens allow larger sizes of feces and detritus to pass through them.

It is important that replacement water be close to the same salinity and temperature as the water in the hatchery tank. For this reason, if temperature and/or salinity in the hatchery water supply varies considerably, a large storage tank is required to ensure that a good supply is available when needed.

2.4 Prevention and treatment of disease

All sea water entering the hatchery should be treated to kill disease or parasitic organisms. Females with eggs should also be treated. Special tanks should be provided for this.

All tanks used in the hatchery should be constructed so that they are easy to clean. Interior surfaces should be smooth and all cracks should be sealed.

Waste water should not be discharged in a place where it could re-enter the water intake pipe.

3. PHYSICAL FACILITIES REQUIRED

3.1 Water supply system

A single pipe is all that is required for the seawater intake line. It can be treated weekly with sodium hypochlorite to kill fouling organisms that would ordinarily grow in the pipe and cause reduced flow rates. A method of doing this is shown in Figure 1. Sodium hypochlorite is added to the intake line while the water pump is running. When added through a very small plastic hose (air line hose) it will drip in slowly and maintain a lethal concentration for long enough to kill everything in the pipe. For a two-inch (5 cm) intake line, four liters dripped in over a 15-minute period is sufficient. The treated water should be wasted. The small line through which the chemical is added must be clamped shut when not in use so air is not sucked into the water line.

The intake pipe should be fitted with a screen to keep fish, jellyfish etc. from being sucked into the pipe and stopping the flow of water. The screen should be removable so it can be cleaned regularly. Two methods of installing water intake lines are illustrated in Figures 1 and 2. If the pump is not self-priming, the water intake pipe should be fitted with a check valve. As these valves may not be available in all areas, a design for one that can be made with little trouble is illustrated in Figure 3.

The seawater should be passed through a high speed sand and crushed shell filter before it enters a storage tank. To be most effective, water should pass down through the filter bed evenly. This can be assured by making a water collection sump at the bottom of the filter (Figure 4). The sand and crushed shell should be washed well before use. The seawater storage tank should be elevated so that the culture tanks can be filled from it by gravity flow.

The water storage tank also serves as a place for chemical treatment of the incoming water to kill disease and parasites. For this reason the tank should have a scale marked on its side to show how much water it contains. The water is treated with 3 ppm chlorine by adding sodium hypochlorite (NaOCl). Treatment is at the rate of 60 ml of 0.5 percent, or 30 ml of 10 percent, NaOCl per cubic meter of water in the tank. The treatment should last for at least 15 minutes, but preferably several hours. Before the seawater is used the chlorine is neutralized by adding sodium thiosulfate (Na2S2O3) to the storage tank at a rate of 50 grams per cubic meter. Care must be taken to aerate the water well before use as the chemical reaction depletes the water of dissolved oxygen.

3.2 Tanks for holding broodstock

A hatchery should have its own supply of broodstock to ensure a reliable stock of spawners. Unfortunately very little is known about the proper design for holding facilities. The main requirement appears to be maintenance of good water quality. This can be achieved by building a biological filter into the system or by changing water regularly. In my opinion, changing water is the preferable method. The holding facility should have smooth surfaces and be round in shape to prevent injury to the shrimp caused by bumping into corners or rough sides. One should be able to observe the shrimp without disturbing them. The tank should be easy to clean and to remove excess food and feces.

A tank which satisfies all the above criteria is shown in Figure 5. The inside of the tank should be finished with a mortar facing to make the surface smooth. No sand or mud is placed on the bottom. Aeration with air lift pumps sets up a circular current which will cause the waste materials to move to the center of the tank where they will be trapped in the sump. The air lift pumps are made of 4 cm (1.5 inches) PVC pipe with an elbow attached to the top to direct the water in the desired direction. The base of the pipe should be cut at a 45 degree angle to allow water to enter. Air should be sparged through an air stone located near the base of the pipe. When water is drained the sump will be cleaned. One half to one third of the water in the tank is to be drained off and replaced daily. Tank diameter is not critical and smaller or larger size tanks can be used. A plastic swimming pool could be used instead of concrete blocks, but it would be difficult to install the sump to collect waste materials.

3.3 Tanks for spawning

Shrimp should be spawned individually in separate tanks. If this is done the mass of organic matter the spawner extrudes with the eggs can be kept out of the hatchery tanks. Only good eggs or active nauplii are placed in the hatchery tanks and the number stocked in each tank can be estimated accurately.

Tanks used for spawning can be fairly small, but they should have a relatively large, flat bottom surface so the eggs can spread out. If the eggs become concentrated in piles the rate of hatching will be reduced. Aeration should be minimal so that water movement is slight and the eggs can sink to the bottom. Eggs can be removed or left in the tank to hatch. To remove the eggs turn off the aeration and let all the eggs settle to the bottom. Next slowly siphon off the surface water leaving about 5 or 6 cm of water in the tank. Then siphon the bottom, catching the eggs in a bucket. If the eggs are allowed to hatch, cover the tank except for a small portion. Healthy nauplii will swim to the lighted uncovered portion of the tank. The concentration of nauplii is then collected by siphoning them out of the tank. Those nauplii too weak to swim to the light are discarded. Nauplii can be stocked in the hatchery tanks at a rate of 250 to 300 per liter.

3.4 Tanks for culturing algae or Brachionus

The spawning tanks can also be used to culture algae and Brachionus. The type of tank and air lift pump shown in Fig. 6 and 7 is essentially similar to one described by Salser and Mock, 1973.

The air lift is removable so it can be cleaned. The air sparge pipe is made of 12 mm (½ inch) PVC with 1 mm air holes on 10 cm centers. The ends are capped. The dividers in the air lift keep the water from channeling up one side of the airlift. The tank is constructed of 19 mm (¾ inch) plywood and the air lift of 6 mm (¼ inch) plywood. The plywood should be coated with fiberglass.

3.5 Tank for culturing larval shrimp

This tank is essentially the same as the tank described in section 3.4, but the dimensions are different. It is deeper than it is wide. The airlift wall is in sections, so sections can be removed if the tank is to be operated with lowered water levels. For this tank the air sparge pipe is 12 mm (½ inch) PVC with 1 mm air holes. The air holes in the middle 60 cm of the sparge pipe are on 18 mm centres and those on the end 30 cm are on 12 mm centres. The bottom of the tank is sloped slightly to aid in draining the tank. As the deeper water level in the tank exerts more pressure, braces are needed outside the tank for support.

Tanks should be elevated so they can be drained easily. One method of doing this is shown in Figure 9. The sand provides a good base for the sloped bottom of the bank and helps support the sides of the tank. The top of the sand forms a walk that can be used when working in the tanks.

3.6 Modified raceway for culturing postlarvae

The larval culture tanks are designed to culture larvae at high density. Postlarvae should be removed from these tanks when they are two or three days old or mortality increases greatly. Excellent growth and survival of postlarval shrimp has been achieved in raceways by Mock, et al., 1973. Raceways can be of almost any size when constructed of concrete or concrete blocks. A small raceway constructed of plywood is shown in Figure 10. The walls are 90 cm high and the length is 2.4 meters (8 ft), width is 1.2 m (4 ft). The air lifts used in this raceway (Figures 11 and 12) are similar to those used in the tanks described earlier. The only difference is that the water is pushed in a different direction and current is directed along the floor tanks.

The removable air lift pump is composed of three sections; an air lift wall panel, a centre dividing board and a discharge wall panel. The air lift panel is of the same design as that shown in Figure 7. The two wall panels are hinged together so they can be spread apart for cleaning. The hinge rests on the centre divider and holds the side panels the correct distance from the tank bottom. To increase the volocity of discharge and decrease turbulence an orifice constrictor is attached to the interior of the discharge wall and a wedge is attached to the tank bottom. These are not essential, but will increase performance of the air lift. The air lift can be constructed of any suitable material, 6 mm (¼ inch) plywood should be adequate. If cost is not a problem, PVC sheet can be used. The hinge pin to hold the two wall panels together can be made from short pieces of air hose with a piece of wood wedge in each end. The air lifts are held in place by wood cleats attached to the wall of the tank.

3.7 Covering

The hatchery units should be covered to protect against rain and sun. This does not necessarily mean an expensive roofed structure is required. Small roofs can be placed over each tank unit or even individual tanks. For individual tanks small removable covers can be used to reduce expenses (Figure 9). The cover should be elevated somewhat from the top of the tank so that air can pass under it to provide cooling. To protect against aquatic insects a small wood frame cover with mosquito mesh can be placed over a tank.

3.8 Accessory equipment

3.8.1 Harvest basin

An inexpensive portable harvesting basin can be made from two plastic wash tubs (Figure 13). One tub has holes cut in the walls. The holes are then covered with fine mesh nylon screen. In use, the tub with the screens is placed inside the other tub. Water from the hatchery tank is drained into the inner tub. The outer basin acts as an overflow to maintain the water level in the inner tub at a level above the top of the screens. If the water is let in at the side of the tub, a circular current is formed that concentrates the small shrimp in the centre. These can be dipped out and placed in an aerated holding tank for counting.

3.8.2 Screens

To remove water from the hatchery tanks without losing or damaging the larvae, fine mesh screens are required. The screens must have a large surface area so that water pressure is reduced at the screen surface. A practical way to do this is with sock type screens (Figure 14). The netting is sewn into a bag. The exterior of the bag must be smooth with no folds or crevices in which the shrimp could become trapped. The bag is fastened to a base plate with a piece of rubber inner tube. The base plate has a nipple which connects to a siphon hose. Plastic hoops or other material can be placed inside the bag to keep it spread out. During siphoning it is important that the entire bag be under water at all times.

3.8.3 Examining dish

At times it is necessary to collect larvae to determine what stage of development they are in or to examine them for disease. A suitable collector and examining container can be made from two plastic cups. The top 1.5 or 2 cm is cut off the cups. A piece of fine mesh nylon screen is placed over the bottom of one of the cups. This is then inserted in the second cup top which holds the screen in place. The outer cup top has two or three notches cut on the bottom side. Larvae can be collected by moving the plastic cup through the hatchery tank. Just as the collector is lifted from the water a petri dish or other suitable container is slipped under the screen. When they are lifted out of the water the petri dish maintains sufficient water in the collecting cup for the larvae. Larvae in a larger sample can be concentrated by pouring the sample directly into the cup and letting the water flow out of the cut notch and overflow the petri dish.

4. REFERENCES

Mock, C.R., R.A. Neal, and B.R. Salser, 1973 A closed raceway for the culture of shrimp. Proc. 4th Ann. Workshop World Maricult. Soc., 4: 247–59

Salser, B.R. and C.R. Mock, 1973 An airlift circulator for algal culture tanks. Proc. 4th Ann. Workshop World Maricult. Soc., 4: 295–8

Figure 1

Figure 1. Water intake line for calm water

Figure 2

Figure 2. Water intake line for areas with moderate wave action

Figure 3

Figure 3. Section thru improvised check valve

Figure 4

Figure 4. Filter and stand for seawater filtration

Figure 5

Figure 5. Tank for holding brood-stock fry for maturation

Figure 6

Figure 6. Tank for culturing algae or brachionus

Figure 7

Figure 7. Partition for air lift to be used in shrimp, brachionus and algae culture tanks

Figure 8

Figure 8. Tank for culture of larval shrimp

Figure 9

Figure 9. Shrimp hatchery tank

Figure 10

Figure 10. Raceway for postlarval shrimp

Figure 11

Figure 11. Details of air lift pump

Figure 12

Figure 12. Details of airlift pump

Figure 13

Figure 13. Basins used to harvest larval and post-larval shrimp

Figure 14

Figure 14. (A) Dish for collecting and examining larvae
(B) Screen for siphoning water from shrimp hatchery tank

SCSP-SFDC/77/AEn/CP23

EXPERIENCES AND PROBLEMS IN THE DESIGN AND MANAGEMENT OF PENAEID SHRIMP HATCHERY IN THAILAND

by

B. Tiensongrusmee
Faculty of Fisheries, Kasetsart University
Bangkhen, Bangkok
Thailand

1. INTRODUCTION

The technology for the shrimp culture is already known in Thailand since 1930. It has developed simultaneously through experiments by government marine fisheries stations as well as trials by private pond owners. In spite of the talk about the bright potential, its production is still negligible and it is not yet a profitable business except in a few isolated cases. In order to make shrimp culture a profitable industry, there are a number of problems to be solved. Among them are seeds supply for shrimp farmers. In the past years, the shrimp seeds were obtained from the natural waters, but the amount obtained fluctuated and was unpredictable. The problem of seed-supply for shrimp farmer is now resolved by the Department of Fisheries, Ministry of Agriculture and Cooperatives, which has established three shrimp hatchery units at Rayong, Songkhla and Phuket provinces in early 1970 to produce shrimp seeds for the shrimp farmers. In this fiscal year, October 1976 through October 1977, 6 722 800 fry of Penaeus merguiensis and 6 300 000 seeds of P. monodon were produced and distributed to local shrimp farmers.

Although it is technically feasible to produce shrimp seed from a hatchery, the operation of shrimp hatchery requires a great deal of technology which is waiting to be done to improve its efficiency and to reduce the cost of production to the economic worth of investment.

2. DESIGN AND CONSTRUCTION

2.1 Site selection

Much of the success of a shrimp hatchery depends on the selection of suitable sites. The desirable location for a shrimp hatchery is in an area near sea. The availability of brood stock, the sea water quality and quantity and the nearness of transportation to shrimp farms are the major factors to be considered in the selection of sites for shrimp hatcheries. It would be advantageous, if sexually matured female shrimp could be obtained near the construction sites in sufficient amounts as required and the supply was constant.

The hydrological condition of the selected area in relation to salinity, pH, and transparency should be studied. The following are the minimum technical requirements that must be satisfied for hatchery construction.

2.1.1   Clean sea water having stabilized quality can be readily pumped at the construction site in large volume.

2.1.2   Good quality of freshwater for daily life, laboratory work and miscellaneous work can be readily obtained at the construction site.

Sea water used for hatchery and rearing of shrimp should have an extremely small content of suspended matter such as muddy particles and sediment when visually inspected, and should preferably be clear enough to cause no clogging of a Mullergaze No. 15 plankton net after filtering about 10 tons. It is more desirable if the sea water contains an adequate percentage of nutritive salts to accelerate the growth of diatoms. Sea water containing excessive nutrients which give rise to frequent red tide development, or is subject to organic contamination, or contains too much bacteria or protozoa should not be used, since it often causes mortality of shrimps in the early larval stage.

2.2 Types and designs and characteristics of each

2.2.1 The breeding tanks

The breeding tanks are optional in size, shape and material. The most dependable structure in efficiency, according to experience, is a round concrete tank measuring 2 m in depth and having a holding capacity of 100 m3. The bottom of the tank is sloped at the rate of 3/100 in one direction. The water should be drainable to the last cupful, if wanted. The drain pipe is made of plastic and equipped with a plastic valve.

For the collection of the fry of larvae grown in the breeding tank, a collecting pool is built, attached to the tank. The collecting pool should be about 1 m in diameter and about 0.40 m deep and located at the end of the drain pipe from the tank.

2.2.2 The rearing tanks

The size and shape of a rearing tank have no serious effects upon the results. Generally speaking, however, a greater number of postlarvae per unit volume of water tends to be produced in smaller than in large tanks. Tank materials should be non-toxic, and opaque materials are preferable to prevent lateral light penetration, which may disturb the behaviour of larvae. As breeding tanks and circular tanks are recommended, outdoor tanks may be used with a roof of translucent materials for controlling temperature and light intensity in order to regulate the growth of diatoms and to prevent outbreaks of unwanted micro-organisms.

2.2.3 Associated facilities

The aeration system is an accessory for the breeding tanks as well as the rearing tanks. Two units of pumps and blowers, one for constant operation and the other for standby, should be installed. The piping of the compressed air is made of plastic tubes and soft polyethylene hoses. The valves to adjust air flow are made of plastic. Air diffuser stones are used to supply air to water in the tanks. The rate of aeration is about 0.04 m3 per minute per m3. The volume of air is more important than pressure because the rearing tank is rather shallow in comparison to its area. Therefore, a blower is preferable to a compressor, as an aerator. The use of a rotary agitation system together with aeration usually gives better results.

3. MANAGEMENT

3.1 Operations

According to experience, the time required for operation of each batch is about 60-day cycles. Normally it requires 10 days for collecting mother shrimp, 45 days for larvae rearing, 5 days for cleaning tanks, associated facilities and preparation for the next operation. This means that six crops could be produced for each rearing tank. If four hatchery units are available and each unit is designed to yield 500 000 postlarvae per cycle, total production per year would amount to 12 000 000 postlarvae. At this level of production, the cost of shrimps seed is about 0.05 Baht each (Table 1).

Table 1. Relation between shrimp fry cost (postlarvae) and annual production 6 rounds per year

Culture densityAnnual productionOperation costFry cost
1 000 fry/ton1 200 000 fry652 599 Baht*0.54 Baht*
2 000 fry/ton2 400 000   ""0.27   "
3 000 fry/ton3 600 000   ""0.18   "
4 000 fry/ton4 800 000   ""0.14   "
5 000 fry/ton6 000 000   ""0.11   "
6 000 fry/ton7 200 000   ""0.09   "
7 000 fry/ton8 400 000   ""0.08   "
8 000 fry/ton9 600 000   ""0.07   "
9 000 fry/ton10 800 000   ""0.06   "
10 000 fry/ton12 000 000   ""0.05   "

* 1 Baht = US$ 0.50

3.2 Management

The main procedures in the management of a shrimp hatchery consists of the following:

3.2.1 Rearing water

Natural sea water should be filtered through a 100–150 mesh netting to remove debris and large planktonic animals, and allow diatoms to pass. Turbid coastal water should be filtered through layers of fine sand to eliminate suspended matter.

At first, the tank is filled to about half full when ripe females are introduced. Later, after tha larvae have attained a mysis stage, the water level is gradually increased by the addition of fresh filtered sea water. By the time the larvae have reached the early postlarval stage, the water will be almost full depth and must be renewed by 20–40 ppt. of its volume everyday. Loss of larvae in the outflowing water may be prevented by using a strainer.

The larvae are able to tolerable a wide range of temperatures from 15 to 35°C. The optimum range, however, lies between 25 and 28°C. At higher temperatures, various diseases are liable to occur, and at lower temperatures growth is retarded. Penaeus monodon larvae are able to tolerate salinities from 5 to 39 ppt. Growth however was found faster at lower salinities although survival rate was constant at all the salinity levels used (Anonymous, 1977). The amount of dissolved oxygen seriously affects the rate of growth and development of the larvae. Oxygen levels of more than 50 percent saturation should be maintained for successful rearing.

3.2.2 Mother shrimp and egg shedding

It is very important to select normal active females because their viability has a direct effect on the success of spawning and the survival of the larvae. The percentage of females that successfully spawn in a tank varies with size. In general, the smaller shrimps are more successful in spawning than the larger females. About 90 percent of spawning occurs on the first night and the remaining 10 percent on the second night. Occasionally spawning may be observed on the third night and later. Mother shrimp are usually taken out of the tank on the third day.

3.2.3 Hatching

Hatching takes place 14–15 hours after spawning. About half of the fertilized eggs will hatch into nauplii. The number of nauplii obtained from a spawning female differs depending on the size of the female. An average of about 200 000 nauplii is usually obtained per spawning female in mass production practices. The number of females in spawning tank should be considered necessary to yield the proper stocking density of nauplii.

3.2.4 Larval development

The standard size of the seed postlarvae of P. monodon for the stocking in the culture pond is 10 to 15 mm in body length or 0.01 to 0.05 g in wet weight. The period from spawning to metamorphosis is about 10 days and from metamorphosis to the attainment of seed size is about 20 days under standard conditions. A much longer period will be required under unfavourable conditions such as overcrowding or low temperatures.

3.2.5 Foods

After attaining the protozoeal stage the larvae must be fed. Basic foods used are planktonic diatoms such as Skeletonema costatum for the protozoea, newly hatched nauplii of Artemia salina for the mysis and early postlarva, and the minced meat of clams or mussels for the later postlarva. There are, however, various substitutes. The eggs and trochophore larvae of bivalves may be fed to the protozoea, diatoms and rotifers to the mysis, rotifers and copepods to the early postlarva, and copepods, polychaetes, shrimps and synthetic diets to the later postlarva.

3.2.6 Food preparation

Growth of diatoms may be accelerated by the addition of KNO3 (2 ppm), KHPO4 (0.2 ppm) and, as occasion demands, FeCl3, 6H2O (trace) and chelating chemicals such as EDTA as soon as successful spawning is observed. When sand filtered sea water is used, it should be inoculated with seed diatoms. Artemia eggs are incubated for about 24 hours with heavy aeration, and the hatched nauplii are separated from the empty shells before feeding. In the mass production procedure, dry eggs may be put directly into the rearing tank, clam meats are shelled, miced with a chopper, mixed with water and then further minutely divided with a mixer. If fouling of the rearing water is anticipated, minced meats should be washed before feeding.

3.2.7 Feeding

The proper density of planktonic diatoms to feed protozoea is 10 000 to 30 000 cells per ml. of rearing water. Each mysis larva consumes about 50 Artemia nauplii per day, and a standard daily ration is 5 grams of dry Artemia eggs per m3 of rearing water at the standard stocking density. An early postlarva consumes 80 to 100 Artemia nauplii per day. The standard daily ration of minced clam meat for later postlarvae is 2 to 3 times their own body weight. In practice, however, the ration is regulated every day according to the feeding activity of the larvae.

3.2.8 Stocking density and survival rate

In mass production the standard stocking density at the stage of newly hatched nauplius is 50 000 larvae per m3 of tank capacity. In small tanks as many as 300 000 nauplii per m3 may be reared up to at least mysis stage with about 80 percent survival. Generally speaking, however, the survival rate from newly hatched nauplius to metamorphosis is 60 to 70 percent. During postlarval stages the survival rate is distinctly density dependent and commonly lies between 50 to 60 percent.

3.2.9 Growth

In Thailand, growth of the larvae and postlarvae in the rearing tank is primarily affected by the amount of available food. The postlarvae can be expected to grow 0.2 mm per day. Much slower growth may occur under unfavourable conditions such as overcrowding or food shortage.

3.2.10 Food conversion rate

The amount of food required to raise 1 kg of seed postlarvae, which is equivalent to almost 100 000 shrimp, varies from 7 to 25 kg depending on the conditions of rearing. Since not all of the food given is consumed by the shrimp, some amount of loss is unavoidable. Variation in the conversion rate seems to be largely attributable to skillfulness in rearing management. Standard rates may be 10 to 15 kg of food for each kg of seed postlarvae produced.

3.2.11 Harvesting and counting

In order to harvest seed postlarvae, they are first concentrated by draining the tank water to ½ to ⅓ depth. Then at night, they may be attracted by light and scooped up with a hand net. This method is time consuming but can minimize ill effects from handling the postlarvae. They may also be flushed out of the tank with the rearing water and caught with an appropriate net. This method is very efficient but the postlarvae are more or less damaged.

4. PROBLEMS AND RECOMMENDED SOLUTIONS

4.1 Water supply

Salt water pumped directly from the sea usually contains a lot of debris, zooplankton, fish larvae, medusae, etc. It takes one or two days to let the debris settle and then water must be refiltered before use, to prevent any kind of harmful organisms from entering the rearing tanks.

There have been reports of a stalked ciliated protozoan infestation on the body surfaces of larvae when larvae or postlarvae grow slowly (not molting frequently) and water quality is poor.

Another cause for the low survival in hatcheries is poor water circulation in the tanks. Normally dead algae, feces, etc., settle to the bottom and decompose anaerobically. If circulation is sufficient to keep the bottom clean, the detritus stays in suspension and degradation is aerobic and by-products are not so harmful. Also, the particles remain available to serve as food for the larvae. To solve this problem, some hatcheries have installed large mechanical stirrers to provide good circulation of water, but these devices are very expensive and subject to mechanical failure.

4.2 Lack of live food

Since Artemia eggs are expensive and frequently in short supply, zooplankton (rotifers, copepods) were used instead of Artemia nauplii. The development of artificial feeds for the mysis stages and early postlarval stage is needed.

In some cases, the hatchery water is treated with chlorine to prevent disease, the algae and zooplankton will not be available for food as in the traditional practice and, consequently, the hatchery tanks must be seeded with diatoms. This is not too difficult, but provision should be made for tanks in which to culture the diatoms. Cook (1976) suggested that Brachionus sp. can be used for the third zoea stage.

It should be noted that there are two critical points in mass production of the seeds. The first critical point is when the larvae begin to feed on plankton, yeast, etc. at the beginning of the zoea stage. At this stage when the larvae seldom move and actively feed, the feed cells should be abundant enough for the larvae to touch the cells with the antena of the larvae. However, the quantity of the phytoplankton should not exceed 106 cells/ml. If the amount exceeds 106 cell/ml and the pH of sea water rises above 8.5, malformed larvae may appear (Furukawa, et al, 1973) and the mortality of larvae will increase due to inability in molting and metamorphosis.

The second critical point is when the larvae change their feeding habit to carnivorous in the early postlarvae stage. At this stage, Artemia nauplii are commonly used as an appropriate feed, but for mass culture, it is hardly used for economic reasons. So in the early stage, rotifers are cultured with Chlorella and yeast cells and used at a concentration of about 5 × 105 cells/ml. From the P10 stage, an artificial feed is supplied gradually, and from the P18 stage, the feed can be completely changed to the artificial one. In this way, the mortality of the larvae can be markedly reduced.

4.3 Shortage of brood stock

A large amount of brood stock is needed to provide sufficient numbers of gravid female shrimp to continuously supply hatchery operations. Based on previous experience, about 10 000 brood stock are required for a hatchery which operates 10 tanks of 15-ton capacity each.

The problem of obtaining sufficient numbers of gravid spawners has been a major constraint in hatchery development. Recently, there have been promising breakthroughs in maturing shrimp in captivity. Many species including P. monodon have been matured, spawned and the larvae reared successfully. Basically, the procedure involves ablation of the eyes stalks which induces ovarian maturation. The other possible way is to allow the premature shrimps to mature artificially by means of administration of hormones, addition of cholesterine to the feed, and/or the adjustment of the light intensity and illumination time.

4.4 Lack of equipment and qualified personnel

One of the most important pieces of equipment for hatchery operation is an air blower for water aeration. Lack of aeration for one night due to the failure of the blower might cause mass mortality of the larvae. Airlift pumps are extremely useful in inducing strong water circulation in tanks. They are inexpensive and have no mechanical parts to break down. Properly installed they move the water in the tank vigorously so the bottom is swept clean, keeping food particles and/or detritus up in the water column.

Qualified personnel are needed for this operation since continuous attention and care are necessary to get best results.

4.5 Disease and prevention

One of the biggest problems in the shrimp hatcheries in Thailand is parasitic infections (mainly fungus) which causes high mortalities. This problem can be minimized if possible sources of infection are eliminated. Cook (1976) suggested that a batch treatment with chlorine is probably the easiest and safest method of eradicating fungus in water.

5. REFERENCES

Anonymous, 1977 Development in hatchery and cultivation of Penaeus monodon in the Philippines. Bureau of Fisheries and Aquatic Resources. ASEAN77/FA.EgA/Doc.WP16: 4p.

Cook, H.L., 1976 Problems in shrimp culture in the South China Sea Region. SCS/76/WP/40: 29p.

Furukawa, I., 1973 K. Hidara and K. Hirano, Production of prawn seeds by marine yeast. Research Paper, Fac. Agr., Miyazaki Univ. 20(1): 93–110p.

Kurata, H., 1975 Culture of the Kurama shrimp. In: Culture of Marine Life. Japan International Cooperation Agency, Government of Japan: 164p.

SCSP-SFDC/77/AEn/CP22

OBSERVATIONS ON THE DESIGN, CONSTRUCTION AND MANAGEMENT OF SMALL-SCALE OR BACKYARD HATCHERY FOR MACROBRACHIUM ROSENBERGII IN THAILAND

by

Somsuk Singholka
Macrobrachium Research Station
Inland Fisheries Division, Department of Fisheries
Bangpakong, Chachoengsao
Thailand

1. INTRODUCTION

About twenty years ago, prawn from the Central Region of Thailand were adequate for the local demand. At the present time, because of increase in human population, construction of roads and dams, the migration route of the species were blocked. This reduced the feeding ground and spawning areas for the prawn. Especially in the brackishwater zones, many factories were built which polluted the spawning grounds. The demand for Macrobrachium in the market continues to be high, resulting in high prices of approximately 120 to 150 Baht1 per kg.

The Thai Government realized this situation and put up a budget for the establishment of two stations for Macrobrachium. One is at Bangpakong in Chachoengsao province and the second one in Songkhla province. Besides this government activity, private farmers who have taken training in the Songkhla station built their own hatcheries. Most of these are located in greater Bangkok.

1 20 Thai Baht = US $ 1

2. CONSIDERATIONS IN SITE SELECTION

2.1 Water supply

Fresh water supply is obtained from tap water source while one of ten hatcheries is known to obtain its water from canal or klong water. The sea water required was transported from the sea using plastic containers.

2.2 Availability of stock

The majority of the hatcheries get gravid females from their own ponds. Some of the newly constructed hatcheries obtain spawners from natural waters. The gravid females are obtainable all year round but with a peak during November, December and January.

2.3 Availability of technology

The farmers that train in the Songkhla station can successfully build and manage their own small-scale hatchery after their training. This shows that the techniques learned are effective. There is available technology offered by the Government which the prawn farmer can use in his project.

3. DESIGN OF THE FAMILY-TYPE HATCHERY

The design of the hatchery is simple and depends upon the decision of the individual farmer. This design may not be based on engineering principles, but usually the farmer considers convenience in the future management of his project.

3.1 Facilities

A typical small-scale prawn hatchery may consist of hatching tanks (either round or rectangular), seawater containers, plastic reservoirs, water pump (usually the smallest obtainable - submersible, 1/8 HP, with 1-inch pipe) and transparent plastic pipes.

3.1.1 The brackishwater reservoir

A farmer mixes fresh- and seawater in these reservoirs to a salinity of about 12 and allow this mixture to stand for 1 to 2 days for thorough mixing and settling of suspended particles.

3.1.2 Plastic pipes

These pipes are made of plastic, flexible and transparent for use in siphoning any detritus or extraneous particles (left-over food) that have settled at the bottom of the hatching tanks.

3.1.3 Fine-meshed dip nets

This dip net has a round rim handle usually with 20 to 25 cm in diameter. This handle is fitted with fine-meshed nylon net to form a dip net which is used to collect larvae which may be carried by the water during the siphoning process to clean the tank.

3.1.4 Air pump

Small vibrator pumps such as those used for aerating glass aquaria for ornamental fish are used to aerate the hatching tank. These aerators are electrically-run and are also used to aerate continuously the fresh- and seawater reservoirs as well as the brackishwater supply resulting from the mixture of seawater and freshwater.

3.2 Layout

There is no fixed pattern of layout for these small-scale prawn hatcheries. The arrangement is fully based on the decision of the individual farmer.

3.3 Construction

For the round tanks, ready-made circular concrete cylindrical pipes (1.5 m diameter × 0.5 m high) of low quality, used in constructing septic tanks in rural areas are usually purchased for this purpose. So that these can be used, one end is sealed by concrete on a hard level surface. Normally the hatchery space is first floored with concrete.

The rectangular tanks are made of hollow blocks and have dimensions of about 2 m × 1 m × 0.5 m. The inner side of the tank is adequately cemented to prevent leaks and seepage. No special treatment for waterproofing these tanks is done because of the expense involved.

The reservoirs for seawater, freshwater and brackishwater (mixture) are likewise made of hollow blocks. The size of these reservoirs varies from 3 to 5 m3, with dimensions usually 2–3 m × 1 m. Newly built reservoirs or tanks are filled with water and allowed to stand for one month. These tanks are usually washed three or four times during this period.

A hatchery set-up is usually placed under a specially-built roof made of corrugated zinc or asbestos sheets.

4. MANAGEMENT

4.1 Techniques

The prawn farmers obtain the berried females and place them in the hatchery tanks. Spawners with eggs that have turned grey from orange color are selected as these are in pre-hatching stage. The depth of water in the hatching stage is about 30 cm. After hatching the spawners are removed from the tanks. After two days feeding of the larvae commences using Moina sp. or pulverized hard boiled egg yolk. The larvae are fed about 4 to 5 times a day. No definite amount is used but the farmer must see to it that the food is adequate and no amount is wasted to settle in the bottom.

After five days, cleaning the bottom by the siphon is done every day until postlarvae are removed from the tank. This takes about 30 to 40 days. Each day the amount of water siphoned and evaporated is replaced with new brackishwater. The farmer will wait until majority of the postlarvae become juveniles and the farmer replaces the brackish with freshwater within a period of two days. These juveniles produced are ready for the market. Prevailing prices at present are about 0.5 Baht per juvenile.

5. ECONOMICS OF OPERATION

This is based on data from three small-scale hatcheries. These hatcheries use from 6 to 19 hatching tanks with capacity of 0.5 m3. The number of juvenile production per month from each hatchery is about 25 000. This means an income 12500 Baht and with about 5 000 Baht for operational expenses per hatchery (80% cost of obtaining seawater and 20% for food and electricity). The labour is done by the farmer's family. The income per month is about 7 500 Baht (US $375) if all juveniles can be sold. Usually about one-half is sold and if the farmer has his own grow-out ponds he can use the unsold stock for these ponds. However, some farmers do not have ponds and depend on the demand from other farmers.

6. CONCLUSIONS AND RECOMMENDATIONS

Under present conditions of management the survival of juveniles from hatching is 5 – 10 percent. This is very low. There is a possibility that the survival rate can be considerably increased by the following innovations:

5.1   Hatcheries at present use water supply of low quality for hatchery work. For instance, the freshwater supply using tap water is often affected by old G.I. pipes which have been used for a long time, thus contaminating the hatchery water supply. Likewise freshwater from canals are supplied and allowed to settle but no disinfection for micro-organisms harmful to the young prawn is being done. Seawater that contain small medusae can harm the small prawns.

5.1.1   The above constraints can be remedied by the installation of simple filtering devices like sand/charcoal filter.

5.1.2   Tap water should not be used but ground water of good quality, if available, should be preferred.

5.2   To improve this simple and inexpensive hatchery system, engineering knowledge should be employed, to systematize and arrange this hatchery to make it more efficient without affecting its simplicity.

5.3   No attention is being given to the disease and parasite problem of these small prawn hatcheries. Mortalities through diseases and parasites are common. Proper treatment and filtering of the water may reduce this danger. The amount of water supply should also be increased over present levels.

5.4   Present practices make use of shallow water in the tanks resulting in big range of temperature fluctuation. The depth of water in the tank will reduce the temperature fluctuation and increase survival.

5.5   New hatcheries to be developed would be better located if near the sea. In general, freshwater would be easier to obtain even along the coast while seawater will be difficult to transport in hatcheries for inland fisheries.

5.6   Prawn farmers operating hatcheries should have their own grow-out ponds so that any juveniles not sold can be stocked in his own pond and he can derive greater profit.

SCSP-SFDC/77/AEn/CP32

EXPERIENCES AND PROBLEMS IN THE DESIGN AND OPERATION OF A MACROBRACHIUM HATCHERY

by

K.S. Ong, F.O. Ng and Y.K. Wong
Fisheries Research Institute
Glugor, Penang, Malaysia

1. INTRODUCTION

The Fisheries Research Institute of the Fisheries Division, Ministry of Agriculture, situated in Glugor, Penang, achieved the world's first success in breeding and in rearing larvae of the giant Malaysian prawn, Macrobrachium rosenbergii (de Man) in the early 60's. The publication of the first break-through by Ling and Merican (1961) led to widespread interest in the culture of the prawn known locally as udang galah with the first broodstock also sent from Glugor. The later works of Ling (1962, 1967a, 1967b) and Fujimura (1970, 1974) provided valuable information for the further development of udang galah breeding and culture into possible commercial scale operation and there are now several prawn culture projects especially in the U.S. (Goodwin and Hanson, 1975; Hagood and Willis 1976).

Since late 1973, the Fisheries Research Institute in Glugor, Penang has progressed from a small laboratory scale to a larger hatchery scale of mass larval rearing for the production of prawn juveniles. The facilities of the present research hatchery in Glugor include fourteen 16-ton concrete tanks and seventeen 2-ton fiberglass tanks, water and air supply systems and other equipment. Suitable specifications for both hatchery design and operations have been derived from our own experiences as well as from the experiences of other workers. Although some supplies of Artemia and berried prawns have still to be obtained from outside the hatchery, the development of the hatchery at Glugor is directed towards as much self-sufficiency in the supplies of live food and berried prawns as possible. The hatchery has also been able to produce 1–2 million stockable juveniles a year (Ong, 1977) and plans are now being made to set up 3 seed production hatcheries in different parts of Malaysia, based on the research hatchery at Glugor.

The important experiences and problems encountered in the design and operations of our Macrobrachium hatchery at Glugor are described in this paper.

2. PHYSICAL AND DESIGN CONSIDERATIONS

These are largely influenced by local conditions, availability of resources and individual preferences.

2.1 Site selection

It is widely recognized that proper site selection is crucial to the success of a hatchery. In the case of our Glugor hatchery, however, the hatchery was developed within the space that was already available for the expansion of the Fisheries Research Institute. Supplies of sea water, fresh water and electricity which are very essential to a hatchery are readily available, except that the surface, raw sea water is very turbid due to the muddy shore at Glugor and has to be filtered first before use. The Glugor hatchery has the advantages of being located within the Fisheries Research Institute and within reach of all the amenities of the city.

2.2 Water supply systems

Sea water is pumped from the sea at high tide to 2 settling tanks or reservoirs, with a total capacity of 400 tons. It has been found that the inlet pipe should be extended outward to about Mean Lower Low Water, in order to be able to pump in cleaner water and as often as required. The reservoirs should be under an opaque roof, to prevent plankton growth and salinity dilution by rainfall. Keeping fish like Tilapia and mullets in the reservoirs will eliminate growth of undesirable organisms (inc. mosquito larvae, algae, etc.). The reservoirs should be provided with bottom drain holes to facilitate regular cleaning and flushing out of accumulated wastes.

From the reservoirs, the sea water is pumped through a diatomaceous-earth filter or filtered through a sand-gravel filter first before being pumped through the D-E filter. The filtered sea water is delivered to an overhead gravity tank which then supplies the water to the rearing tanks. The pumps are for convenience actuated by float-switches, according to the water levels in the reservoirs and gravity tank.

Although a tube-well sea water system as constructed in Hawaii (Fujimura 1974) is ideal, it is not possible to use the tube-well system in Glugor due to the impenetrable bottom rock strata. Also, where brackish or sea water can be obtained from a borehole, as found in our site selection for the seed production hatcheries, the water quality was found to be unsuitable because of excessive iron (more than 120 ppm) and ammoniacal nitrogen (more than 8 ppm). It is therefore necessary to rely on surface sea water in many cases.

Fresh water at Glugor is taken from the public supply. It is first allowed to stand in a reservoir exposed to sunlight for the chlorine to dissipate. From the reservoir, the fresh water is pumped to a separate gravity tank which then supplies the fresh water to the rearing tanks as required.

All sea water and fresh water piping and valves are of PVC, and the pumps are of corrosion-resistant type and provided with standbys.

2.3 Air supply system

A Roots-type positive displacement air blower has been found to be very reliable for supplying a continuous and copious amount of aeration for the rearing tanks. All rearing tanks should be provided with individual air control valves, and all the piping and valves of PVC.

2.4 Electricity supply

Breakdowns in public electricity supplies do happen, and it is necessary to install a standby generator to ensure that at least the air blower can be run continuously.

2.5 Rearing tanks

The Glugor hatchery uses both rectangular fiberglass tanks, 3 × 1.2 × 0.6 m (10' × 4' × 2'; approx. 2-ton capacity each) and large concrete tanks, 8 × 8 × 2.3 × 0.9 m (29' × 7.5' × 3': approx. 16-ton capacity each). The fiberglass tanks are placed 2–3 feet 0.5 – 1 m apart from each other to facilitate culture operations, while the concrete tanks are built in a row - with common walls - to minimize costs of construction, and copings are built above the tank partitions to provide walking space for culture operations. The highly alkaline concrete tank surfaces were thoroughly soaked with fresh water and acid before the tanks could be used for rearing. Some of the concrete tanks were also coated with an epoxy paint. Both the 2-ton fiberglass and 16-ton concrete tanks have been found to be suitable for rearing use; coating of the concrete surfaces with epoxy paint or polyester resin probably improves the concrete tank for rearing use, especially for the larvae. Twenty small fiberglass tanks 0.9 × 0.6 × 0.6 m (3' × 2' × 2') are also provided in the hatchery, specifically for the holding and incubation of berried females produced from the hatchery broodstock tanks.

2.6 Hatchery building

In Glugor, it is necessary to house all the rearing tanks and facilities in an enclosed building, in order to obtain suitable rearing conditions, as rearing tanks placed outdoors would be exposed to excessive solar heating, heavy rains, and also to quick infestation by pests and predators, such as dragonfly nymphs and water boatmen (Micronecta spp.). In order to get the optimum sunlight penetration and rearing temperature (28–31°C), the proper ratio of clear or translucent roofing sheets to opaque roofing sheets has to be determined by trial and error over a period of time. Alternatively, a sliding type of roof could be built, so as to control the amount of light and temperature inside the hatchery. In spite of the proper roof design, however, there will still be unsuitable temperature and light conditions during periods of weather extremes. For example, the last quarter of the year is usually the rainy season in Penang, and the hatchery operations are then often adversely affected by low temperatures and short periods of bright sunshine. The ideal hatchery would therefore need to have complete engineering systems for maintaining optimum temperature and other rearing conditions, but costs may be prohibitive.

2.7 Laboratory, workshop and hatchery equipment

Apart from the hatchery building and rearing tanks, it is necessary to incorporate in the hatchery design adequate laboratory and workshop space and equipment for the analysis of the rearing water, examination of the larvae, storage and preparation of feeds, fixing of PVC pipes and fittings, servicing of pumps, etc.

3. HATCHERY OPERATIONS

Successful hatchery operations depend on the availability of all the essential requirements/materials, proper hatchery design and techniques, and the skill of the operators.

3.1 Supply of berried females

It is not only expensive but also very difficult to get enough berried females from the wild. There are also no prawn culture ponds in the vicinity of our Glugor hatchery. The required regular supply of berried females is obtained from the broodstock maintained in 2 concrete hatchery tanks, provided with built-in biological filters which ensure water quality with only occasional change of rearing water required. About 40 berried females can easily be obtained each week from total broodstock population of about 400 (300 females and 100 males), especially if cockle (Anadara granosa) is used regularly for feeding.

3.2 Supply of brine shrimp/live food

For hatching efficiency, the brine shrimp or Artemia used for feeding in all the larval rearing tanks is hatched in conical fiberglass tanks, with aeration from the bottom. The inadequacy of Artemia is however a major constraint in hatchery operations, as prawn larvae cannot be successfully raised on egg custard, fish flesh or dried egg yolk alone. Several rearing tanks in our Glugor hatchery are therefore set aside for the cultivation of a brackishwater cladoceran, Diaphanosoma which was first raised in Singapore (Chen, et al., 1977). The mass production of Diaphanosoma is at present carried out with phytoplankton (unicellular green algae) used for feeding, supplemented with powdered chicken feed. It is envisaged that if adequate facilities for Diaphanosoma and/or other suitable species of zooplankton production are included in the hatchery design, hatchery operations need not be completely hampered by lack of Artemia. One biological problem however encountered at present in the mass production of Diaphanosoma based on phytoplankton is the frequent infestation and rapid proliferation of rotifers in the culture tanks which seriously compete with the cladoceran for the available food and rotifers are unfortunately not a suitable food for the udang galah larvae. The development of an efficient system for producing a suitable substitute for Artemia in hatchery operations is therefore the key to large scale expansion of hatchery operations.

3.3 Prawn larviculture techniques

Larval cultures are carried out in both 2-ton fiberglass and 16-ton concrete tanks. Berried females from the broodstock tanks are first held in small fiberglass tanks until they are just about to hatch, and are then transferred to the larval rearing tanks for direct hatching, after which the females are caught out and placed back into the broodstock tanks.

Both clear and green water (with a salinity of 10–15 ppt) can be used for larvel rearing, provided that proper feeding, water quality or tank hygiene and prevention of diseases and predators (such as small jellyfish) can be maintained. The clear water rearing method suffers from the practical drawback of long time involved in siphoning out bottom wastes and algae that grow attached to the walls and bottom of the tanks. One major problem encountered in the green water rearing method is the frequent proliferation of rotifers in the rearing water which can clear up the green water within a day or two. This problem can be controlled by first reducing the rearing water and then treating it with formalin at about 250 ppm for approximately one hour. Frequent thorough flushing out of the rearing water with clean water and a weekly treatment with formalin will also prevent the jellyfish problem.

Under proper culture management and good weather conditions, the production cycle, i.e. from the day of larval hatching to the harvesting of postlarvae/juveniles, can be completed within 40 days, with a production rate of 7–13 juveniles per litre of rearing volume, or 7–13 thousand juveniles per ton of rearing tank volume.

3.4 Skilled personnel

The Glugor hatchery operates throughout the year. Hatchery operations entail continuous monitoring and maintenance of production batches and hatchery systems, including Sundays and public holidays. It is very essential to have sufficient staff with the necessary hatchery skills to ensure the smooth running of the hatchery.

4. CONCLUSION

The engineering design of a Macrobrachium hatchery should ensure the provision and easy maintenance of the optimum physicochemical conditions required for the efficient production of stockable juveniles for pond culture, taking into consideration also the costs involved and special local conditions. For smooth hatchery operations, priority attention should be directed towards obtaining a regular supply of Artemia and/or developing a system for the continuous production of suitable zooplankton species as a substitute for Artemia.

5. REFERENCES

Chen, F.Y. et al., 1977 Artificial spawning and larval rearing of the grouper Epinephelus tauvina (Forskal) in Singapore. Singapore J. Pri. Ind. 5(1): 1–21

Fujimura, T. and H. 1970 Okamoto, Notes on progress made in developing a mass culturing technique for Macrobrachium rosenbergii in Hawaii. In coastal Aquaculture in the Indo-Pacific Region, T.V.R. Pillay, Ed., FAO/Fishing News (Books) Ltd., 1970: 313–27

Fujimura, T., 1974 Development of a prawn culture industry in Hawaii. Job Completion Report for 1969–1972, National Marine Fisheries Service Project No. H-14-D: 21p.

Goodwin, H.L. and J.A. Hanson, 1974 The aquaculture of freshwater prawns (Macrobrachium species). Oceanic Institute, Hawaii, 95p.

Hagood, R.W. and S.A. Willis, 1976 Cost comparisons of rearing larvae of freshwater shrimp, Macrobrachium acanthurus and M. rosenbergii, to juveniles. Aquaculture, 7: 59–74

Ling, S.W. and A.B.O. Merican, 1961 Notes on the life and habits of the adults and larval stages of Macrobrachium rosenbergii (de Man). FAO IPFC Curr. Aff. Bull. 35: 1–11

Ling, S.W., 1969a The general biology and development of Macrobrachium rosenbergii (de Man). FAO Fish. Rep. (57) Vol. 3: 589–606

Ling, S.W., 1969b Methods of rearing and culturing Macrobrachium rosenbergii (de Man). FAO Fish. Rep. (57) Vo. 3: 607–19

Ong, K.S., 1977 Prospects and problems of Macrobrachium/Finfish polyculture in freshwater ponds. First ASEAN Meeting of Experts on Aquaculture, Tech. Rep., ASEAN77/FA.EgA/Rpt.2, Doc. WP20: 143–7

SCSP-SFDC/77/AEn/CP4

DESIGN, LAYOUT AND CONSTRUCTION OF FRESHWATER FISHPONDS USED FOR FINFISH CULTURE IN HONG KONG

by

A.W. Sin
Department of Agriculture and Fisheries
Hong Kong

1. GENERAL INFORMATION

The design and construction of inland fishponds in Hong Kong vary in accordance with the nature of the soil, topographic features of selected sites, and accessibility to natural water systems. Other dependent variables also include the system of culture intended for a selected site, the need of the inclusion of a drainage system, and other physical characteristics of the farm concerned.

In general, there are two main categories of fishponds: lowland ponds distributed over a wide area of original marshy and low-lying agricultural lands, and barrage ponds constructed on higher grounds in small valleys with natural streams present. By culture system, these are designed for either polyculture or monoculture of the commercially important pond fishes.

2. DESIGN AND LAYOUT OF POLYCULTURE FISHPONDS

The layout and design of polyculture fishponds are planned to maximize the utilization of a site and the convenient management of culture operations.

2.1 Size

Under the Hong Kong conditions, it has not been possible to assess the optimum size of polyculture ponds. While the usually small size of farm sites is a limitation, the varying practices employed in culture management also make such an assessment difficult. From a detailed aerial survey conducted in 1974, the 0.6–1.0-hectare size was found to be the most common (Table 1).

Table 1. Pond Site Distribution at End of 1974

Area in hectaresNo. measuredPercent
below 0.58534.7
0.6–110342.0
1.1–1.53715.1
1.6–2.093.7
2.1–2.593.7
over 220.8
Total245100

2.2 Depth

Ponds with access to natural waters developed before the sixties have a depth of approximately 1.8 metres measured from the bottom of the pond to the top level of the bund, containing water of about 1.2 metres. Since the subsequent sites developed are devoid of natural water supply, the ponds had to be deepened to allow a water depth of 2–3 metres taking into consideration of loss of pond water through evaporation. Under stagnant water culture conditions, it is not advisable to further increase the depth of water in the Hong Kong fishponds unless aeration can be established as an economically viable additional production input.

2.3 Shape

Although the most manageable shape of the fishponds for construction, feeding and harvesting is rectangular, there are deviations resulting from the physical boundaries of the developed sites.

2.4 Design of bunds

Bunds are wide at the base but narrow on the top. Their design is determined by nature of the site, soil and water supply. The choice of material and method of construction have bearing on their durability.

Where a pond is built on a piece of flat land, bunds forming its perimeter are always constructed by heaping the soil scraped from the pond site. For ponds built across valleys adjacent to hilly slopes, bunds have to be strengthened to withstand the greater hydrostatic pressure and the forces of flowing water by the provision of a wider structure.

The slope of the bunds ranges from 1:1.5 to 1:2 if built with clayey soil. Excessively gentle slope is uneconomical to operate because water space is lost and construction cost increases. On sandy soil, the usual slope is 1:3. In general, the exposed surface of the slope is covered with grass to protect it against water erosion while the submerged portion is not usually lined.

Pond constructed in recent years have higher bunds to increase their water holding capacity on one hand and to retain as much rainwater as possible during the rainy season on the other. The benefits of this design ensures the presence of water for early stocking of fish immediately after the dry winter before the following wet season beginning in April and prevents flooding. The height of these peripheral bunds are therefore higher than the highest flood water estimated to be 4.5 metres above sea level. The internal bunds are capable of holding 2–3 metres of water in the pond and are equipped with sluice gates for transfer of water among adjacent ponds. As heavy machinery is not required in fish farming in Hong Kong, the top of the peripheral bund is about 3–4 metres in width while for the internal bund 1.5–2.5 metres is sufficient.

2.5 Sluice gate

The sluice gate has been a standard facility for ponds built adjacent to streams in the earlier period. It is built either of wood or cement concrete across the opening of a bund to regulate the passage of water between the pond and the stream. The size of the gate varies with that of the pond with a width ranging from 0.6–1.5 metres. On each internal side of the opening of the gate two vertical grooves about 3.5–5 cm wide and extending from the top of the bottom are used to accommodate two rows of wooden planks, about 0.5–1 metre apart. Between these rows of wooden planks, wet clay is placed and compacted to stop water exchange between the two sides of the bund. Ponds remote from streams are not provided with sluice gates.

2.6 Spillway

A spillway is constructed on top of the sluice gate and is usually screened with a wire netting. Its purpose is to maintain the maximum water level in a pond. It is also commonly installed for barrage ponds to allow the continuing overflow of stream water.

3. DESIGN AND LAYOUT OF MONOCULTURE PONDS

3.1 Size

These ponds are under 0.5 hectares in size with the majority under 0.15 hectares. A monoculture farm invariably has several ponds for the holding of snakehead or catfish of different size groups so that cannibalism is avoided as far as possible.

3.2 Shape

There is no definite shape of ponds required for the snakehead or catfish culture. Ponds are usually rectangular or square unless limited by the topographic condition of the site.

3.3 Bunds

Because monoculture ponds are small, they are built manually by piling up rectangular blocks of wet mud removed from the pond site. Soil erosion by water is reduced by lining the inner surface of bunds with wooden planks or asbestos sheets. The slope of a bund is steep ranging from 3:1–2:1. The bunds are usually narrow, 0.6–1 metre in width and are about 1–1.2 metres high. On top of the peripheral bunds, a fine-meshed wire fencing, about 0.9 metres high is erected to prevent escape of fish.

3.4 Drainage

Water exchange is usually done by pipes. To maintain a desirable water depth, underground water is supplied, while the excess of water is disposed of by pipes around 7.5–10 cm in diameter. For complete draining of the pond, this is done by drain pipes of the same diameter installed at the pond bottom.

4. CONSTRUCTION OF PONDS FOR POLYCULTURE

Since the majority of ponds for polyculture are developed in flat lowland areas, pond construction is comparatively simple. It involves the excavation of the ground to provide soil for the formation of the bunds. Prior to construction work usually carried out in the dry season, vegetation within a site is first thoroughly removed so that the plant materials are not mixed with the soil. Simple surveys are conducted to delineate the location of the bunds. The baselines of the bunds at a given height, width and slope are marked on the ground with wooden pegs or lines. The positions of the sluice gates, on the internal and peripheral bunds are also fixed. The volume of soil required for the formation of the bunds is calculated and provided by scraping evenly the whole ground surface down to a certain depth. The soil is heaped up according to the earmarked boundaries. Afterwards, the sluice gates according to the required specifications are constructed. This process of construction and the final levelling of the top and smoothing out of the slope is usually done by bulldozers. Bunds so built tend to sink to a certain extent depending on the soil texture and degree of compaction. This should be taken into consideration when the height of the bunds is decided. In Hong Kong soil compaction is not particularly emphasized.

Soon after the construction is completed the pond should be filled up with water, otherwise the soil may become acidic on long exposure to sunlight. The uncovered surfaces of bunds should be limed as well to reduce the acidity developed in the soil. Planting of grass on the bunds is an advantage in minimizing soil erosion.


Previous Page Top of Page Next Page